706-883-6123

      Property Listings

      Browse or search properties available through J.T. Jones & Associates

      0 - 1,000,000 0 - 5,000
      More options

      Property Description

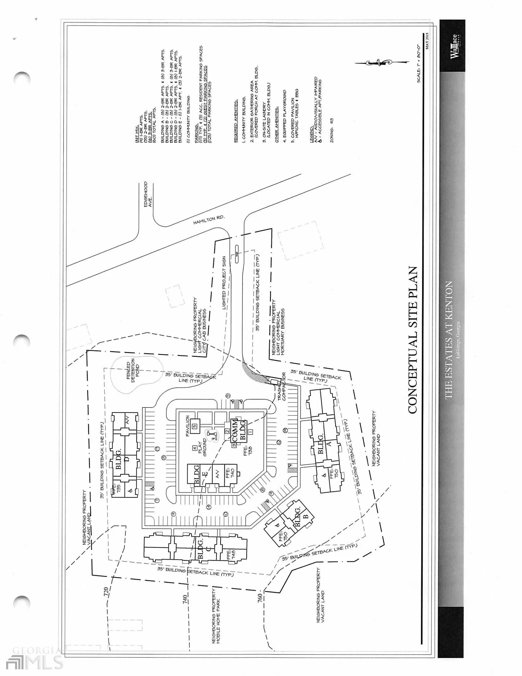
      THIS PROPERTY HAS BEEN ZONED FOR MULTI FAMILY. THE SITE HAS BEEN DESIGNED WITH 60 UNITS (9@ 1 BR, 35 @ 2 BR, 16 @ 3 BR) AMENITIES 1. COMMUNITY BUILDING, 2. EXTERIOR GATHERING AREA, 3. ON SITE LAUNDRY, 4. EQUIPPED PLAYGROUNDS, 5. COVERED PAVILION WITH PICNIC TABLES & BBQ. ADDITIONAL CONTIGUIOUS ACRES CAN BE ADDED UP TO A TOTAL OF 17.5 ACRES THIS PROPERTY HAS FRONTAGE ON THE WIDENING DOT PROJECT OF HAMILTON ST AND GOES ALL THE WAY THROUGH TO WHITESVILLE ST WITH 628.77 FEET OF ROAD FRONTAGE.

      Features
      : Public Sewer
      : Cable Available, Electricity Available, Sewer Available, Water Available, Phone Available, Natural Gas Available, High Speed Internet
      Property Location
      1404-1406
      Hamilton
      Lagrange
      Troup
      GA
      Additional Information
      : None
      : City Lot
      2021-12-15
      : Public
      $0
      Financial
      314.87
      Listing Information
      STRIBLING
      STRB01
      2025-12-16T06:06:59Z
      gamls
      2025-12-16T06:06:59Z
      Address Map
      FROM EXIT 13 I-85 GO NORTH ON WHITESVILLE RD. 1.8 MILES PROPERTY IS ON THE EAST SIDE OF THE ROAD FROM THE HAMILTON RD EXIT FROM I-85 GO NORTH 1.3 MILES THE PROPERTY IS ON THE WEST SIDE OF THE ROAD.

      Land For Sale

      1404-1406 Hamilton, LaGrange, GA 30241

      $1,100,000
      Listing ID #20006811
      Basic Details
      Property Type : Land
      Listing Type : For Sale
      Listing ID : 20006811
      Price : $1,100,000
      Status : Active
      Property Sub Type : Residential Lot
      Agent info
      J.T. Jones & Associates Realty Inc.
      211 Church St., LaGrange GA
      Contact Agent

      Proud members of the National Association of REALTORS®

      Thinking of Buying or Selling? Not sure where to start?

      The process of buying or selling your home can be a difficult undertaking.  But J.T. Jones is here for you.

      We’ve distilled our thirty-plus years of real estate experience into this guide, and we’d like to offer it to you as a free gift, so you’ll save valuable time and avoid the pitfalls and headaches of buying your home.